Available
The Old Manor is a flexible village home with generous space, previously run as a bed and breakfast, now currently a private residence with an attached holiday cottage, ideal for multi-generational living, home and income, or a main house with a self-contained annex.

6 Bed Detached house For Sale

£430,000

Keeling Street, North Somercotes, Louth

  • 6
  • 5
  • 3
Key Features
  • Flexible Layout with Annex or Holiday Cottage
  • Previously Operated as a Bed and Breakfast
  • Three or Four En-Suite Bedrooms in Main House
  • Two Or Three Reception Rooms
  • Entrance Hall with Galleried Landing
  • Multi-Fuel Stoves to Principal Reception Rooms
  • Balcony Overlooking the Garden
  • Garage, Spacious Drives and Established Gardens
  • Council Tax, The Cottage : A
Property Description
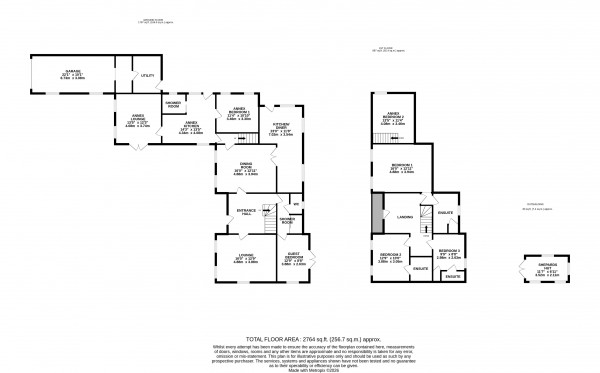
The Old Manor is a highly adaptable village home offering generous accommodation and a layout that suits a variety of living arrangements. Previously run as a bed and breakfast, it is now used as a comfortable private residence with an attached holiday cottage. The flexibility of the property makes it equally suitable for multi-generational living, home and income, or a main house with a self-contained annex. Step Inside You enter the property into a welcoming entrance hall, where a central staircase rises to a galleried landing. This practical and well-proportioned space provides access to the main ground floor rooms. To either side of the hall are the two principal reception rooms. The sitting room to the front is a comfortable and inviting space, featuring a fireplace with a multi-fuel stove, dual-aspect windows and a bespoke window seat overlooking the garden. Opposite, the second reception room works well as an everyday living or dining room. A brick chimney breast houses a further multi-fuel stove, and the room connects directly with both the breakfast kitchen and the attached cottage, making it particularly practical for family life or guests. To the rear is a versatile room that can be used either as a ground floor bedroom with en-suite facilities or as a garden room with patio doors to the rear. The adjoining shower room and separate WC also serve as useful ground floor amenities. The breakfast kitchen is fitted with modern, high-gloss units and integrated appliances. A spacious breakfast area provides plenty of room for informal dining and works well for day-to-day living as well as relaxed entertaining. On the first floor, the galleried landing leads to three double bedrooms, each with its own en-suite. A balcony from the landing overlooks the garden and is a pleasant spot to enjoy the evening sun. The principal bedroom is located to the front of the house and benefits from two windows and an en-suite shower room with panelled lower walls and a walk-in shower. The remaining bedrooms are also en-suite, one with a shower room and the other with a corner bath and shower over. Step Outside The Old Manor is approached via a broad open entrance leading to a parking area with space for several vehicles. A flagged pathway, bordered by lawn, leads to the front door. The front garden is well stocked with mature borders, seasonal planting, a pergola-covered pond with decked seating, and a patio area. To the rear of the property, a second gated driveway provides further parking. This area is bordered by lawn and includes a shepherd’s hut, along with a courtyard garden featuring a patio and outdoor chimney, creating a sheltered and usable outdoor space. The Cottage The attached holiday cottage can be accessed either internally from the main house through a secure door or externally from the rear courtyard. The kitchen is fitted with shaker-style units in contrasting colours, beech block work surfaces and space for a breakfast table. The sitting room has dual-aspect windows and a recessed multi-fuel burner, creating a warm and comfortable atmosphere. French doors open onto a small private seating area. A ground floor bedroom with built-in wardrobes sits close to the spacious wet room. On the first floor is a second bedroom with a vaulted ceiling, which has been arranged so it can be used either as part of the cottage or incorporated into the main house if required. An external utility room, well suited to holiday letting or bed and breakfast use, links through to the garage.
Floorplan for North Somercotes, Louth
EPC for North Somercotes, Louth
Key Features
  • • Flexible Layout with Annex or Holiday Cottage
  • • Previously Operated as a Bed and Breakfast
  • • Three or Four En-Suite Bedrooms in Main House
  • • Two Or Three Reception Rooms
  • • Entrance Hall with Galleried Landing
  • • Multi-Fuel Stoves to Principal Reception Rooms
  • • Balcony Overlooking the Garden
  • • Garage, Spacious Drives and Established Gardens
  • • Council Tax, The Cottage : A
Property Description
The Old Manor is a highly adaptable village home offering generous accommodation and a layout that suits a variety of living arrangements. Previously run as a bed and breakfast, it is now used as a comfortable private residence with an attached holiday cottage. The flexibility of the property makes it equally suitable for multi-generational living, home and income, or a main house with a self-contained annex. Step Inside You enter the property into a welcoming entrance hall, where a central staircase rises to a galleried landing. This practical and well-proportioned space provides access to the main ground floor rooms. To either side of the hall are the two principal reception rooms. The sitting room to the front is a comfortable and inviting space, featuring a fireplace with a multi-fuel stove, dual-aspect windows and a bespoke window seat overlooking the garden. Opposite, the second reception room works well as an everyday living or dining room. A brick chimney breast houses a further multi-fuel stove, and the room connects directly with both the breakfast kitchen and the attached cottage, making it particularly practical for family life or guests. To the rear is a versatile room that can be used either as a ground floor bedroom with en-suite facilities or as a garden room with patio doors to the rear. The adjoining shower room and separate WC also serve as useful ground floor amenities. The breakfast kitchen is fitted with modern, high-gloss units and integrated appliances. A spacious breakfast area provides plenty of room for informal dining and works well for day-to-day living as well as relaxed entertaining. On the first floor, the galleried landing leads to three double bedrooms, each with its own en-suite. A balcony from the landing overlooks the garden and is a pleasant spot to enjoy the evening sun. The principal bedroom is located to the front of the house and benefits from two windows and an en-suite shower room with panelled lower walls and a walk-in shower. The remaining bedrooms are also en-suite, one with a shower room and the other with a corner bath and shower over. Step Outside The Old Manor is approached via a broad open entrance leading to a parking area with space for several vehicles. A flagged pathway, bordered by lawn, leads to the front door. The front garden is well stocked with mature borders, seasonal planting, a pergola-covered pond with decked seating, and a patio area. To the rear of the property, a second gated driveway provides further parking. This area is bordered by lawn and includes a shepherd’s hut, along with a courtyard garden featuring a patio and outdoor chimney, creating a sheltered and usable outdoor space. The Cottage The attached holiday cottage can be accessed either internally from the main house through a secure door or externally from the rear courtyard. The kitchen is fitted with shaker-style units in contrasting colours, beech block work surfaces and space for a breakfast table. The sitting room has dual-aspect windows and a recessed multi-fuel burner, creating a warm and comfortable atmosphere. French doors open onto a small private seating area. A ground floor bedroom with built-in wardrobes sits close to the spacious wet room. On the first floor is a second bedroom with a vaulted ceiling, which has been arranged so it can be used either as part of the cottage or incorporated into the main house if required. An external utility room, well suited to holiday letting or bed and breakfast use, links through to the garage.
Floorplan for North Somercotes, Louth
EPC for North Somercotes, Louth

Sign up to our Newsletter

By clicking submit , you agree to our Terms & Conditions and Privacy Policy .