Available
A fully vacant investment opportunity on Cleethorpe Road, offering two self-contained flats and a large rear workshop with excellent income potential.

3 Bed Terraced House For Sale

Guide Price £80,000

Cleethorpe Road, Grimsby

  • 3
  • 2
  • 3
Key Features
  • Two selfcontained flats plus a substantial garage/workshop at the rear
  • All units previously let individually with separate utilities
  • Fully vacant and ready for modernisation to maximise returns
  • Estimated rental income exceeding £1,000pcm across three units
  • Potential for HMO conversion (subject to licensing and consents)
  • Wellconnected location close to New Clee train station and Cleethorpes seafront
  • For Sale by Modern Auction – T & C’s apply
  • Subject to Reserve Price
  • Buyers fees apply
  • The Modern Method of Auction
Property Description
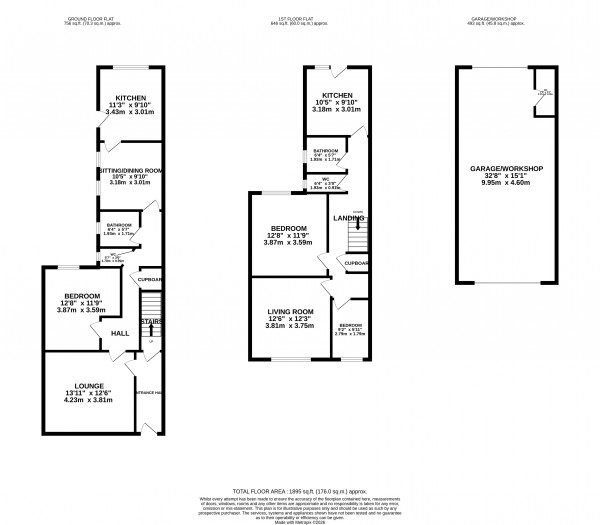
Ground Floor Flat The ground floor flat offers a spacious and practical layout, featuring a generous lounge, a double bedroom, a separate sitting/dining room, a well-sized kitchen, bathroom, and a separate WC. There’s also a hallway with storage. This unit is ideal for rental or owner-occupation and benefits from its own utilities. First Floor Flat Upstairs, the first floor flat comprises a bright living room, a double bedroom, a compact second bedroom/study, kitchen, bathroom, and separate WC. A landing with built-in storage completes the layout. Like the ground floor, this flat is independently metered and previously let as a standalone unit. Outside – Garage/Workshop To the rear of the property is a substantial detached garage/workshop offering excellent potential. This versatile space has served as a third rental unit and could continue as a workshop, secure storage, or be repurposed subject to planning. Location Situated on Cleethorpe Road, Grimsby (DN31 3BP), the property occupies a well-connected position with excellent access to everyday amenities, bus routes, and the town centre. New Clee train station is only a short distance away, providing convenient links across the region. Cleethorpes seafront, with its popular attractions, cafés, and coastline, is also within easy reach, making the area appealing to both longterm renters and those seeking proximity to leisure facilities. This stretch of Cleethorpe Road continues to attract strong interest from investors due to its accessibility and rental demand. Investment Potential Fully vacant and ready for its next chapter, this property presents a fantastic opportunity to modernise and maximise returns. With all three units previously let individually and separately metered, the estimated rental income could exceed £1,000pcm. Alternatively, subject to licensing and necessary alterations, conversion to a House in Multiple Occupation (HMO) could significantly boost income. Both flats currently hold valid electrical reports, offering added reassurance for landlords and buyers. In addition, purchasers may wish to explore the potential to separate the title and sell the units individually, subject to their own legal and planning checks. This flexibility enhances the property’s longterm value and exit strategy options. Auctioneer Comments: This property is for sale by Modern Method of Auction allowing the buyer and seller to complete within a 56 Day Reservation Period. Interested parties’ personal data will be shared with the Auctioneer (iamsold Ltd). If considering a mortgage, inspect and consider the property carefully with your lender before bidding. A Buyer Information Pack is provided, which you must view before bidding. The buyer is responsible for the Pack fee. For the most recent information on the Buyer Information Pack fee, please contact the iamsold team. The buyer signs a Reservation Agreement and makes payment of a Non-Refundable Reservation Fee of 4.5% of the purchase price inc VAT, subject to a minimum of £6,600 inc. VAT. This Fee is paid to reserve the property to the buyer during the Reservation Period and is paid in addition to the purchase price. The Fee is considered within calculations for stamp duty. Services may be recommended by the Agent/Auctioneer in which they will receive payment from the service provider if the service is taken. Payment varies but will be no more than £960 inc. VAT. These services are optional. TO VIEW OR MAKE A BID – Contact DDM Residential on 01472 358671.
Floorplan for Grimsby
EPC for Grimsby
Key Features
  • • Two selfcontained flats plus a substantial garage/workshop at the rear
  • • All units previously let individually with separate utilities
  • • Fully vacant and ready for modernisation to maximise returns
  • • Estimated rental income exceeding £1,000pcm across three units
  • • Potential for HMO conversion (subject to licensing and consents)
  • • Wellconnected location close to New Clee train station and Cleethorpes seafront
  • • For Sale by Modern Auction – T & C’s apply
  • • Subject to Reserve Price
  • • Buyers fees apply
  • • The Modern Method of Auction
Property Description
Ground Floor Flat The ground floor flat offers a spacious and practical layout, featuring a generous lounge, a double bedroom, a separate sitting/dining room, a well-sized kitchen, bathroom, and a separate WC. There’s also a hallway with storage. This unit is ideal for rental or owner-occupation and benefits from its own utilities. First Floor Flat Upstairs, the first floor flat comprises a bright living room, a double bedroom, a compact second bedroom/study, kitchen, bathroom, and separate WC. A landing with built-in storage completes the layout. Like the ground floor, this flat is independently metered and previously let as a standalone unit. Outside – Garage/Workshop To the rear of the property is a substantial detached garage/workshop offering excellent potential. This versatile space has served as a third rental unit and could continue as a workshop, secure storage, or be repurposed subject to planning. Location Situated on Cleethorpe Road, Grimsby (DN31 3BP), the property occupies a well-connected position with excellent access to everyday amenities, bus routes, and the town centre. New Clee train station is only a short distance away, providing convenient links across the region. Cleethorpes seafront, with its popular attractions, cafés, and coastline, is also within easy reach, making the area appealing to both longterm renters and those seeking proximity to leisure facilities. This stretch of Cleethorpe Road continues to attract strong interest from investors due to its accessibility and rental demand. Investment Potential Fully vacant and ready for its next chapter, this property presents a fantastic opportunity to modernise and maximise returns. With all three units previously let individually and separately metered, the estimated rental income could exceed £1,000pcm. Alternatively, subject to licensing and necessary alterations, conversion to a House in Multiple Occupation (HMO) could significantly boost income. Both flats currently hold valid electrical reports, offering added reassurance for landlords and buyers. In addition, purchasers may wish to explore the potential to separate the title and sell the units individually, subject to their own legal and planning checks. This flexibility enhances the property’s longterm value and exit strategy options. Auctioneer Comments: This property is for sale by Modern Method of Auction allowing the buyer and seller to complete within a 56 Day Reservation Period. Interested parties’ personal data will be shared with the Auctioneer (iamsold Ltd). If considering a mortgage, inspect and consider the property carefully with your lender before bidding. A Buyer Information Pack is provided, which you must view before bidding. The buyer is responsible for the Pack fee. For the most recent information on the Buyer Information Pack fee, please contact the iamsold team. The buyer signs a Reservation Agreement and makes payment of a Non-Refundable Reservation Fee of 4.5% of the purchase price inc VAT, subject to a minimum of £6,600 inc. VAT. This Fee is paid to reserve the property to the buyer during the Reservation Period and is paid in addition to the purchase price. The Fee is considered within calculations for stamp duty. Services may be recommended by the Agent/Auctioneer in which they will receive payment from the service provider if the service is taken. Payment varies but will be no more than £960 inc. VAT. These services are optional. TO VIEW OR MAKE A BID – Contact DDM Residential on 01472 358671.
Floorplan for Grimsby
EPC for Grimsby

Sign up to our Newsletter

By clicking submit , you agree to our Terms & Conditions and Privacy Policy .