Available
The Lock House is a high-quality contemporary home, individually designed and rebuilt on the footprint of the former lock house. Set in a superb waterside position, it enjoys views across the lock and uninterrupted vistas along the canal and countryside, offering a peaceful and striking setting.

5 Bed Detached house For Sale

£1,250,000

Claybridge, Sykehouse, Goole

  • 5
  • 5
  • 2
Key Features
  • Landmark Contemporary Waterside Home
  • Striking Open Plan Living Dining Kitchen
  • Across Three Floors With Stunning Central Glass Lift
  • Intelligent Loxone Smart Technology
  • Mood Lighting, Electric Blinds & Music System
  • Over 800 Solar Tiles
  • Luxury Swim Spa Leisure Suite
  • Five En Suite Double Bedrooms
  • Exceptional Quality And Fitments
Property Description
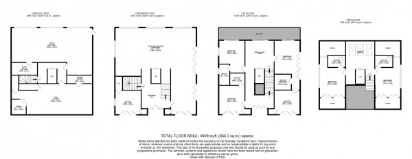
Arranged across four floors and finished to an outstanding standard throughout, this is a home where architectural design, luxurious fitments and cutting edge technology combine seamlessly. A stunning glass lift rises through the centre of the property, connecting beautifully proportioned accommodation that includes a superb leisure suite, expansive open plan living spaces and five beautifully appointed double bedroom suites. Every element has been carefully considered, resulting in a home of rare quality, remarkable efficiency and exceptional comfort. Step Inside The sense of arrival is immediate, with the house revealing a sleek and highly individual interior where scale, light and craftsmanship are at the forefront. At the heart of the home is the striking open plan living space, designed for both day to day living and sophisticated entertaining. A beautifully fitted German kitchen is complemented by a premium range of integrated appliances and finished with the sort of detail and specification expected from a house of this calibre. The space flows effortlessly into dining and sitting areas centred around an impressive feature media wall and fireplace. Almost floor to ceiling glazing draws natural light deep into the interior, whilst also framing the surrounding waterside views to stunning effect. A bespoke staircase with solid oak treads, glazed risers and seamless glass balustrading further enhances the contemporary styling and exceptional quality found throughout the home. The overall finish is outstanding, with high quality materials, refined fitments and a considered palette combining to create a home that feels both luxurious and highly functional. A defining feature of the property is its intelligent integration of technology. The house has been designed to operate as one harmonious system, with Loxone smart home controls managing mood lighting, heating, electric blinds, security and music, allowing the ambience of the home to be tailored at the touch of a button. The result is not only impressive in practical terms, but also elevates the day to day living experience, offering a level of comfort and convenience rarely encountered in residential property. The lower ground floor is equally impressive, incorporating a triple garage, plant room and a superb leisure suite. This indulgent space includes a top of the range swim spa, a medical grade sauna and room for gym equipment, providing a private wellness retreat within the home itself. The upper floors are arranged to provide five generous double bedrooms, each with its own en suite, all enjoying beautiful open views. The principal suite is particularly impressive, offering true boutique hotel appeal with a stylish en suite bathroom, walk in wardrobe and a bedroom opening onto its own balcony — a wonderful place from which to enjoy the outlook over the canal and surrounding landscape. At the centre of it all, the stunning glass lift brings a dramatic architectural focal point as well as effortless accessibility across all four levels, reinforcing the home’s blend of design flair and modern practicality. Step Outside The property is approached via electric gates opening onto a generous private driveway providing parking for several vehicles in addition to the triple integrated garage with electric doors. The setting immediately conveys both privacy and prestige, with the grounds arranged to complement the house and its exceptional position. To one side of the driveway lies a substantial vegetable garden, whilst to the other a private walled garden provides a more enclosed and sheltered outdoor space. Beyond the lawned areas, a wraparound terrace extends around the house, perfectly designed for entertaining, outdoor dining and making the most of the breathtaking waterside surroundings. Whether hosting on a summer evening or simply enjoying the changing light across the canal, the outside space has been designed to feel every bit as impressive as the interior. The views are a defining part of the property’s appeal — overlooking the lock to the rear and stretching along the canal and countryside beyond — giving the house an ever changing and truly special backdrop.
Floorplan for Sykehouse, Goole
EPC for Sykehouse, Goole
Key Features
  • • Landmark Contemporary Waterside Home
  • • Striking Open Plan Living Dining Kitchen
  • • Across Three Floors With Stunning Central Glass Lift
  • • Intelligent Loxone Smart Technology
  • • Mood Lighting, Electric Blinds & Music System
  • • Over 800 Solar Tiles
  • • Luxury Swim Spa Leisure Suite
  • • Five En Suite Double Bedrooms
  • • Exceptional Quality And Fitments
Property Description
Arranged across four floors and finished to an outstanding standard throughout, this is a home where architectural design, luxurious fitments and cutting edge technology combine seamlessly. A stunning glass lift rises through the centre of the property, connecting beautifully proportioned accommodation that includes a superb leisure suite, expansive open plan living spaces and five beautifully appointed double bedroom suites. Every element has been carefully considered, resulting in a home of rare quality, remarkable efficiency and exceptional comfort. Step Inside The sense of arrival is immediate, with the house revealing a sleek and highly individual interior where scale, light and craftsmanship are at the forefront. At the heart of the home is the striking open plan living space, designed for both day to day living and sophisticated entertaining. A beautifully fitted German kitchen is complemented by a premium range of integrated appliances and finished with the sort of detail and specification expected from a house of this calibre. The space flows effortlessly into dining and sitting areas centred around an impressive feature media wall and fireplace. Almost floor to ceiling glazing draws natural light deep into the interior, whilst also framing the surrounding waterside views to stunning effect. A bespoke staircase with solid oak treads, glazed risers and seamless glass balustrading further enhances the contemporary styling and exceptional quality found throughout the home. The overall finish is outstanding, with high quality materials, refined fitments and a considered palette combining to create a home that feels both luxurious and highly functional. A defining feature of the property is its intelligent integration of technology. The house has been designed to operate as one harmonious system, with Loxone smart home controls managing mood lighting, heating, electric blinds, security and music, allowing the ambience of the home to be tailored at the touch of a button. The result is not only impressive in practical terms, but also elevates the day to day living experience, offering a level of comfort and convenience rarely encountered in residential property. The lower ground floor is equally impressive, incorporating a triple garage, plant room and a superb leisure suite. This indulgent space includes a top of the range swim spa, a medical grade sauna and room for gym equipment, providing a private wellness retreat within the home itself. The upper floors are arranged to provide five generous double bedrooms, each with its own en suite, all enjoying beautiful open views. The principal suite is particularly impressive, offering true boutique hotel appeal with a stylish en suite bathroom, walk in wardrobe and a bedroom opening onto its own balcony — a wonderful place from which to enjoy the outlook over the canal and surrounding landscape. At the centre of it all, the stunning glass lift brings a dramatic architectural focal point as well as effortless accessibility across all four levels, reinforcing the home’s blend of design flair and modern practicality. Step Outside The property is approached via electric gates opening onto a generous private driveway providing parking for several vehicles in addition to the triple integrated garage with electric doors. The setting immediately conveys both privacy and prestige, with the grounds arranged to complement the house and its exceptional position. To one side of the driveway lies a substantial vegetable garden, whilst to the other a private walled garden provides a more enclosed and sheltered outdoor space. Beyond the lawned areas, a wraparound terrace extends around the house, perfectly designed for entertaining, outdoor dining and making the most of the breathtaking waterside surroundings. Whether hosting on a summer evening or simply enjoying the changing light across the canal, the outside space has been designed to feel every bit as impressive as the interior. The views are a defining part of the property’s appeal — overlooking the lock to the rear and stretching along the canal and countryside beyond — giving the house an ever changing and truly special backdrop.
Floorplan for Sykehouse, Goole
EPC for Sykehouse, Goole

Sign up to our Newsletter

By clicking submit , you agree to our Terms & Conditions and Privacy Policy .